叉车充电间改造扩容项目
一、项目概况
考虑到厂区缺乏叉车等设备的充电设施,叉车的使用频率日益增加,现有的叉车充电间已无法满足日益增长的充电需求。为了提高叉车的使用效率,保障物流作业的顺畅进行,现计划将焦糖色库改造为叉车充电间,在南北西三面安装支架及相关配套设施,增加充电间的面积及充电位数量,满足叉车充电需求减少等待时间,从而为叉车等设备提供便捷、安全的充电环境。
二、项目勘察与技术分析
改造前现场照片


改造后效果图
设计说明:为保障叉车顺利进入库内充电,需拆除东面原有卷帘门及风幕机,并将卷帘门洞口朝左方向拓宽50mm,以适配叉车通行尺寸要求。
改造前现场照片
改造后效果图


设计说明:为保障叉车设施的******充电需求,在南、西、北三个方位分别安装专用支架,并在钢板上铺设绝缘毯,用以规范摆放充电设施,确保充电作业安全有序进行。
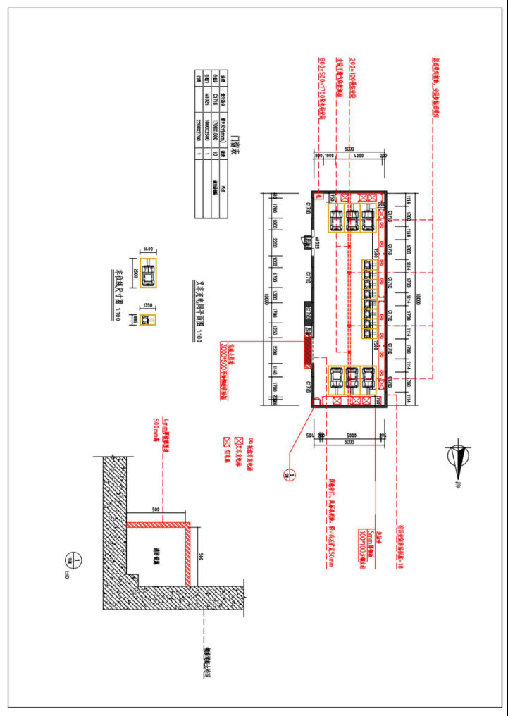
电缆走线图
![]() |
三、技术国标参数
GB/T 12706.1《额定电压 1kV (Um=1.2kV) 到 35kV (Um=40.5kV) 挤包绝缘电力电缆及附件 第 1 部分:额定电压 1kV (Um=1.2kV) 和 3kV (Um=3.6kV) 电缆》
GB 3836.1《爆炸性环境 第 1 部分:设备 通用要求》
GB 3836.2《爆炸性环境 第 2 部分:由隔爆外壳 “d” 保护的设备》
GB 50169《接地装置施工及验收规范》
GB/T 700《碳素结构钢》
GB 50661《钢结构焊接规范》
GB 50010《混凝土结构设计规范》
GB 15322.1《可燃气体探测器 第 1 部分:测量范围为 0-100% LEL 的点型可燃气体探测器》






